Betreubares Wohnen  | 2011
Wohnen für SeniorInnen in Spillern/NÖ  | Kanicegasse 1, 2104 Spillern/NÖ


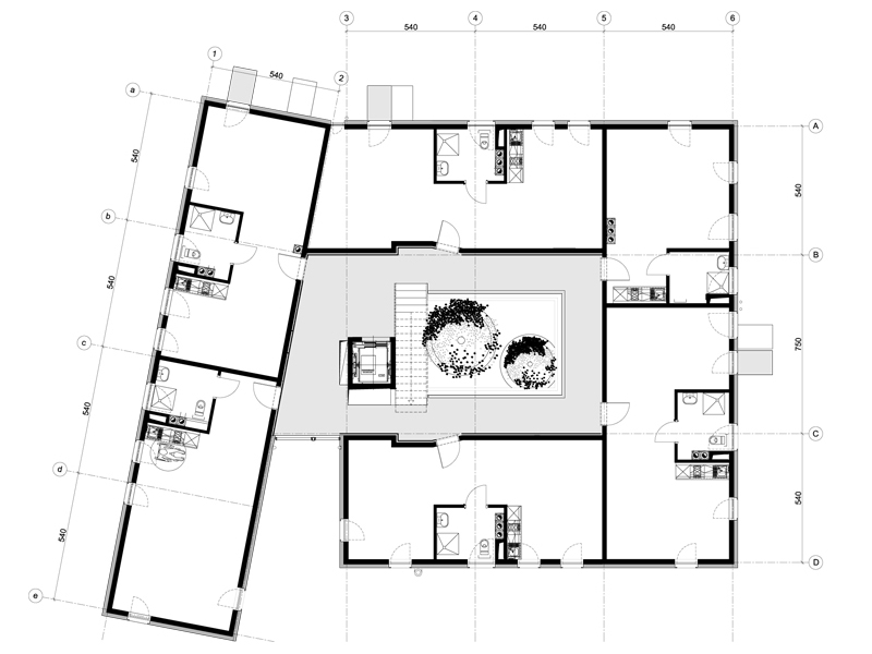
Betreuungsformen im Wohnen können je nach Intensität der Betreuung unterschiedlich organisiert sein. Die einfachste Form stellt so genanntes „Betreubares Wohnen“ dar. Im Betreubaren Wohnen Spillern werden 16 kleine Wohneinheiten durch einen Gemeinschaftsraum, eine Gemeinschaftsküche, ein Gemeinschaftsdachgarten sowie durch eine Anlaufstelle für eine Betreuungsorganisation ergänzt. Der Baukörper orientiert sich als Atriumtyp an bestehenden historischen Bauformen vor Ort und interpretiert diese neu. Er besteht aus zwei Elementen - einem U - förmigen überdachten Hofgebäude und einem linearen, leicht aus der Achse gekippten Bauteil. Das Atrium wird als halböffentlicher, geschlossener Platz und erweiterte Wohnfläche verstanden, so wie auch die umlaufenden Gänge. Sie dienen neben der Erschließung als Kommunikationszone und Vorplatz vor der Wohnung, analog zur Bank vor dem eigenen Haus. Die für alle Bewohnenden zugängliche Dachterrasse mit einem Kräuter-Therapiegarten bildet einen zusätzlichen Anziehungspunkt. 16 Wohnungen zu je ca. 50m2 sind offen strukturiert: Ein mittiges, barrierefreies Bad mit natürlicher Belichtung teilt den Raum in zwei Bereiche, einen Wohn-, Koch- und Essbereich und einen Schlafbereich. Jede Wohnung erhält ein zusätzliches Fenster in den Innenhof, der mit unterschiedlichen Zement- gebundenen Platten in Beige- und Grautönen verkleidet ist. Baukörper, Struktur und Atmosphären sollen die Kommunikation und das Gemeinschaftsleben fördern.



Projektdaten
Bauherr:  GEBÖS
Planung:  Köb&Pollak Architektur
Freiraumplanung:  Auböck + Kárász
Statik:  DI Eduard Kraus
Bauphysik:  DI Eduard Kraus
Fotos:  Pez Hejduk
Nutzfläche:  1.002 m²

 

<  PROJEKTE  >